Квартира молодого человека
Пожелания заказчика:
Что бы было комфортно, уютно, и не перегруженное пространство мебелью, а еще использование современных элементов в дизайне квартиры.
Следуя стилю материалы в интерьере были выбраны имитация натуральных.
На полу в кухне и прихожей, в ванной и сан. узле керамогранит под мрамор и под дерево.
Был выбран стиль минимализм
Минимализм в дизайне интерьера, — это не когда мало.
Минимализм — это когда достаточно. А ещё комфортно, функционально и красиво.
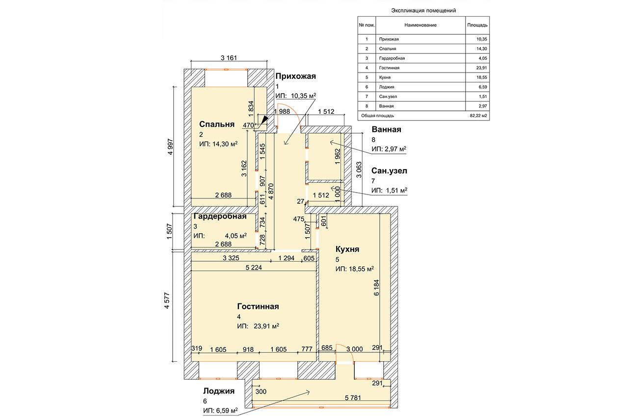
Чертежи для строителей содержат подробный обмерный план
Экспликацию помещений до перепланировки, план демонтажных работ, план расстановки мебели и сантехнического оборудования с размерами, план построения конструкций, развертки стен с декоративными элементами.
Планы размещения розеток и выключателей, планы потолков и расстановки источников освещения, план дополнительных электро. выводов, план зон теплого пола, раскладка напольных покрытий, планы раскладки плитки и керамогранита и т.д.










































